ワーカーズ倶楽部水道橋は無料会議室が嬉しい完全個室レンタルオフィスでした!(1/2)
2025年03月05日
年々増えるレンタルオフィス。今回は、
水道橋駅 にある「 ワーカーズ倶楽部水道橋 」のご紹介をさせて頂きます。

↓こちらの目次は1ページ目のみの内容となります
建物とその周辺道路
↓建物外観



↓建物共用部


↓建物周辺道路


おすすめなサービス・設備・共用部
レンタルオフィスで重要な役割のサービスや設備を早速見ていきましょう!
フリースぺース

オフィス契約をすれば自由に使えるフリースぺースは、普通の事務所物件にはない大きなメリット。 オフィススペースで気分転換したい際のコーヒー&ティータイムに使えることはもちろん、集中して仕事をしたい時など、非常に便利です。
こうしたスペースがあるのは嬉しいポイントですね!
受付パネル

ワーカーズ倶楽部水道橋 は無人運営ではありますが、入り口部分に受付パネルが設置されています。
来客者はこのパネルを使って、入居者を呼び出すことができるのです。
登記可能な個室・共有の会議室
ここからは専有できる個室スペースと、共有の個室となる会議室を見ていきましょう!
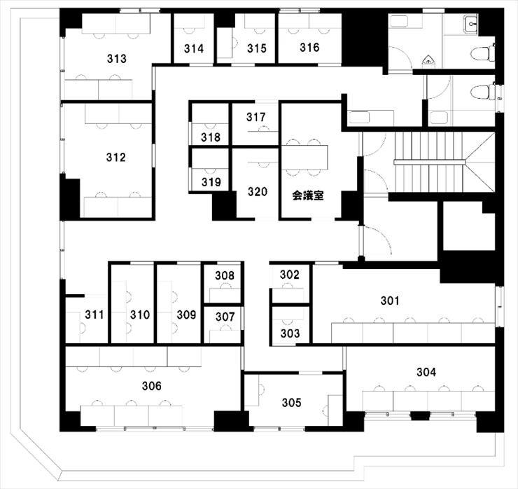
間取り

共用部廊下

個室

レンタルオフィスで現地に行ってみて初めて気づくこともある「半個室」のタイプ。
「半個室」タイプはリーズナブルなケースが多くそこは魅力ですが、天井まで壁がないため、会話や電話の声が漏れるところが気になる人には大きな難点となりがちです
「 ワーカーズ倶楽部水道橋 」のオフィススペースは天井まで壁のある「完全個室」タイプがあるので、自分だけの仕事空間が保ててるのでおすすめです。もちろん、登記もできます!
↓他の部屋の執務スペースの様子




高品質オフィス家具一式 (レンタル料無料)

家具付きの良いところは、デスク・椅子ワンセットで5~10万円するコストが削減でき、退去時の原状回復費用も不要に。
さらに入居に合わせ、オフィス家具搬入のスケジュール調整と、購入・レイアウト考案の人手もカット。 レンタルオフィスでは人数・部屋に合わせオフィス家具がセットされているので、入居したその日から手間いらずで即仕事ができます。オフィス家具自体もプロ目線で厳選されています。機能性なども、ぜひ現地でチェックしてみてください!
また、自分で購入したこだわりの家具を利用したい場合は持ち込みも相談できることもありますので、その際はご相談ください。
会議室

来客時に使うことの多い会議室は大切ですね。
「 ワーカーズ倶楽部水道橋 」は共用部に会議室を完備してます!
なんと、無料で使うことができるのです!
嬉しいポイントですね。
その他設備・サービスについて
時にはビジネスの成功のカギにつながることさえある、レンタルオフィスのサービスと設備。
運営によって本当に様々なサービスがありますので、ここでは細かい点もチェックしていきます!
コピー機、シュレッダー

共用部に複合機を完備。
トイレ共用部男女別、水回り共用部

水回りの清掃をしなくていいですね!また、男女別トイレは女性スタッフにも喜ばれそうです。
水光熱費無料

インターネット代無料

賃料には、電気代、水道代、インターネット代が含まれています。
通常なら、これらの費用で毎月1~3万円くらいかかりますので、お得ですね!
その他




次ページでは、気になる「建物情報」「空室&賃料情報」等をご紹介していきます!
下記ページより空室情報を確認いただけます。
SOHOオフィスナビではレンタルオフィス名ではなく
「 J-SQUARE水道橋/レンタルオフィス 」で表記されてますのでご注意ください↓

![]()
この近くのレンタルオフィス・サービスオフィスを検索できます↓
![]()


























