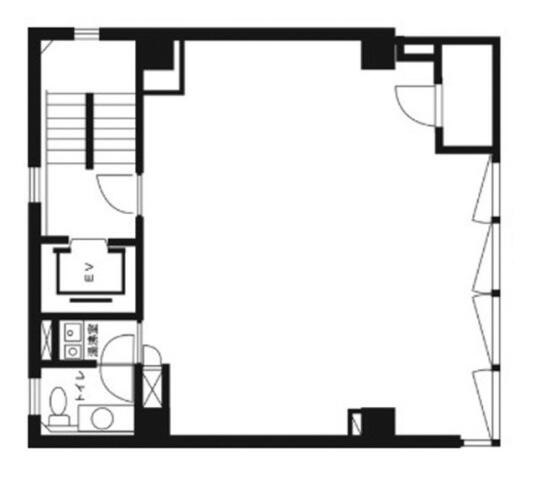
| 号室 | 賃料 | 管理費 | 敷金/礼金 | 専有面積 | |
|---|---|---|---|---|---|
| 3階 | 258,480円 (税別) | 75,390円 (税別) | 6ヶ月/0ヶ月 | 71.21m² |
| 住所 | 東京都港区東新橋2丁目6番3号 | 最寄駅 | JR山手線「新橋」駅徒歩6分 都営大江戸線「汐留」駅徒歩6分 都営三田線「御成門」駅徒歩8分 |
|---|---|---|---|
| 築年月 | 1988年08月 | その他交通 | |
| 構造 | 鉄骨鉄筋コンクリート造(SRC造) 7階建 | 設備 | エレベーター , OAフロア |
| 駐車場 | 契約期間 | ||
| 備考 | - - | 更新日 | 2025年09月11日 |
| その他費用 | |||
お問い合わせの際は、「建物No.02381」とお伝えください。
03-5468-6097
営業日:平日、第2、第4土曜 / 受付時間:10:00~19:00
03-5468-6097
〒150-0002 東京都渋谷区渋谷3-15-5 パールビル3階 東京都知事免許(4)第86290号 会社案内
| 号室 | 賃料 | 管理費 | 敷金/礼金 | 専有面積 | |
|---|---|---|---|---|---|
| 6階 | -- (税別) | 498,530円 (税別) | 8ヶ月/0ヶ月 | 54.64m² | |
| 7階 | -- (税別) | 0円 (税別) | 8ヶ月/0ヶ月 | 50.16m² |

新橋駅は、山手線と京浜東北線、横須賀線、東海道線のJR各線のほか、地下鉄銀座線、浅草線、ゆりかもめを利用できます。
烏森口が歓楽街であること、街頭インタビューでもたびたび登場することから、サラリーマンの街としてのイメージが根強いエリアです。汐留口からは、電通や日本テレビ放送網、パナソニック電工などの大手企業の本社が集まる「汐留シオサイト」、ソフトバンクが入居する「東京汐留ビルディング」をはじめとした近代オフィス街などに向かうことができ、オフィス拠点として利便性の高さは十分。また、日比谷口からは都立日比谷公園にアクセスでき、大小の花壇や音楽堂が人々に安らぎをもたらしています。
近隣のレンタルオフィス取材記事はこちら↓
→レンタルオフィス・シェアオフィス×新橋【取材記事】
→レンタルオフィス・シェアオフィス×銀座【取材記事】
→レンタルオフィス・シェアオフィス×有楽町【取材記事】
→レンタルオフィス・シェアオフィス×東京【取材記事】
新橋駅賃料相場(坪単価):1.53万円
都営大江戸線「汐留」駅からも同じく6分の好立地です。
コンビニ(ファミリーマート)まで徒歩30秒で
ランチ時や急な要りよう時にはとても便利です!
第一京浜すぐ裏ですので交通の便もとても良好です。