| 賃料:1,128,864円 | 管理費:282,216円 |
| 敷金:10ヶ月- | 礼金:0ヶ月 |
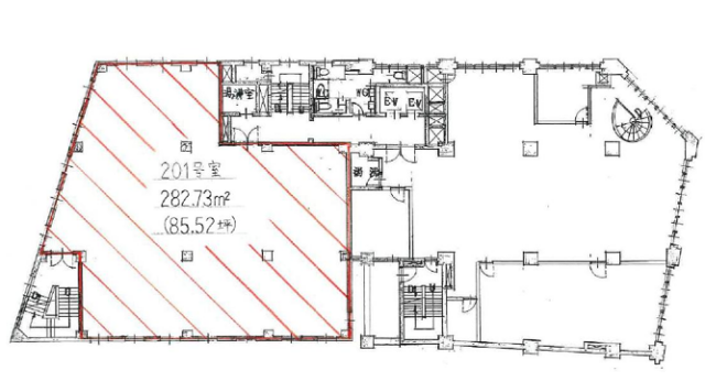
| 面積:282.73m² | 所在階:地上2階 |
| 間取り:事務所 | 築年月:1956年01月 |
| 賃料/管理費 | 1,128,864円/282,216円 | フリーレント | 0ヶ月 |
|---|---|---|---|
| 敷金/礼金 | 10ヶ月/0ヶ月 | 内見・入居 | 内見可 |
| 間取り | 事務所 | 面積 | 282.73m² |
| 所在階 | 地上2階 | 最大スペース | |
| 住所 | 東京都千代田区外神田2丁目4番4号 | 最寄駅 | JR山手線「秋葉原」駅徒歩5分 東京メトロ銀座線「末広町」駅徒歩7分 JR中央・総武線「御茶ノ水」駅徒歩5分 |
| その他交通 | 築年月 | 1956年01月 | |
| 方角 | 構造 | 鉄骨鉄筋コンクリート造(SRC造) 8階建 | |
| 契約期間 | 2年間 | 契約形態 | 普通借家 |
| 償却 | 0ヶ月 | 設備 | エレベーター , OAフロア |
| 更新料 | 0ヶ月 | 更新日 | 2025年10月10日 |
| 備考 | |||
お問い合わせの際は、「お問い合わせ番号:71810」とお伝えください。
03-5468-6097
営業日:平日、第2、第4土曜 / 受付時間:10:00~19:00
03-5468-6097
〒150-0002 東京都渋谷区渋谷3-15-5 パールビル3階 東京都知事免許(4)第86290号 会社案内
| 号室 | 賃料 | 管理費 | 敷金/礼金 | 専有面積 | |
|---|---|---|---|---|---|
| 302号室 | -- (税別) | 270,765円 (税別) | 10ヶ月/0ヶ月 | 271.24m² | |
| 104号室 | -- (税別) | 0円 (税別) | 12ヶ月/0ヶ月 | 128.68m² |

秋葉原駅は、山手線、京浜東北線、総武線のJR、地下鉄日比谷線、つくばエクスプレスを利用でき、昭和通り口からは、徒歩2~3分で地下鉄の岩本町駅にアクセスできます。
2000年以降、秋葉原はIT産業の世界的拠点をめざした都の政策により再開発されました。複合施設「秋葉原クロスフィールド」内には、日立製作所が入る「秋葉原ダイビル」、レノボジャパンやNTTグループ、日立グループが入る「秋葉原UDX」の高層ビルが誕生。優れた空間建築が、洗練された景観を演出しています。
また、駅の西側には、世界有数の電気街「秋葉原電気街」を形成。近年ではアニメやゲームを扱うホビー系のショップが増加しています。
近隣のレンタルオフィス取材記事はこちら↓
→レンタルオフィス・シェアオフィス×秋葉原【取材記事】
→レンタルオフィス・シェアオフィス×上野・御徒町【取材記事】
→レンタルオフィス・シェアオフィス×神田【取材記事】
秋葉原駅賃料相場(坪単価):1.26万円
1964年竣工、上品なベージュ色の外壁の建物です。耐震補強工事実施済みで安心です。
「神田明神下交差点」角地に立地しており、視認性良好!お客様をご案内する際にもわかりやすい立地です。
基準となるフロアは1フロア約106坪。EV2基、共用部に男女別のトイレや給湯室があります。個別空調や機械警備など設備も充実しています。
周辺はオフィスが多いエリア。コンビニや飲食店、郵便局などが近くにあり利便性も良好です!