前のページへ戻る

お問い合わせ番号:27608このページを印刷する

  • 所在地:東京都中央区銀座8丁目12番13号
  • 交通:JR山手線「新橋」駅徒歩5分
  • 交通2:東京メトロ銀座線「銀座」駅徒歩5分
  • 交通3:都営浅草線「東銀座」駅徒歩6分
賃料:相談 管理費:相談
敷金:12ヶ月- 礼金:0ヶ月
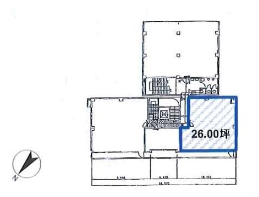
面積:84.4m² 所在階:地上3階
間取り:事務所 築年月:1960年03月

物件探しをプロへ依頼する

「豊川ビル」の物件概要・特徴

賃料/管理費 相談/相談 フリーレント 0ヶ月
敷金/礼金 12ヶ月/0ヶ月 内見・入居
間取り 事務所 面積 84.4m²
所在階 地上3階 最大スペース
住所 東京都中央区銀座8丁目12番13号 最寄駅 JR山手線「新橋」駅徒歩5分
東京メトロ銀座線「銀座」駅徒歩5分
都営浅草線「東銀座」駅徒歩6分
その他交通 築年月 1960年03月
方角 構造
契約期間 2年間 契約形態 普通借家
償却 0ヶ月 設備 エレベーター
更新料 更新日 2025年09月11日
入会金 0ヶ月
備考


ある新橋駅はこんな駅

賃料相場(坪単価):1.53万円

通る路線

新橋駅情報ページへ

「豊川ビル」の他空室情報

豊川ビル3 階に近い物件()内は豊川ビルからの直線距離を表示しています。

空室確認、内覧予約、類似物件提案依頼等、まずはお問合せください!掲載されていない物件も含めて現在募集中の物件はすべてご紹介できます!

お電話での
お問合せ

お問い合わせの際は、「お問い合わせ番号:27608」とお伝えください。

03-5468-6097

営業日:平日、第2、第4土曜 / 受付時間:10:00~19:00

物件探しをプロへ依頼する




アーデントならNTTデータベース活用&クラウドPBXのセット提案で、電話番号を変えずにオフィス移転可能

中央区「新橋」駅のSOHOオフィス、SOHOマンションなら

東京の賃貸オフィス専門 アーデント

03-5468-6097

〒150-0002 東京都渋谷区渋谷3-15-5 パールビル3階 東京都知事免許(4)第86290号 会社案内

豊川ビルに条件の近い物件を検索

こだわり条件タグ

「豊川ビル」の成約済み部屋情報

号室 賃料 管理費 敷金/礼金 専有面積
5階 相談 相談 12ヶ月/0ヶ月 86.06m²
新橋駅画像

サラリーマンの聖地。オフィスとしても交通の便が良く人気、地方企業の支店が多い

新橋駅は、山手線と京浜東北線、横須賀線、東海道線のJR各線のほか、地下鉄銀座線、浅草線、ゆりかもめを利用できます。

烏森口が歓楽街であること、街頭インタビューでもたびたび登場することから、サラリーマンの街としてのイメージが根強いエリアです。汐留口からは、電通や日本テレビ放送網、パナソニック電工などの大手企業の本社が集まる「汐留シオサイト」、ソフトバンクが入居する「東京汐留ビルディング」をはじめとした近代オフィス街などに向かうことができ、オフィス拠点として利便性の高さは十分。また、日比谷口からは都立日比谷公園にアクセスでき、大小の花壇や音楽堂が人々に安らぎをもたらしています。

近隣のレンタルオフィス取材記事はこちら↓
レンタルオフィス・シェアオフィス×新橋【取材記事】
レンタルオフィス・シェアオフィス×銀座【取材記事】
レンタルオフィス・シェアオフィス×有楽町【取材記事】
レンタルオフィス・シェアオフィス×東京【取材記事】 

新橋駅賃料相場(坪単価)1.53万円

新橋駅情報ページへ

新橋駅を通る路線のオフィスを探す

新橋駅近隣の駅でオフィスを探す