| 住所 | 東京都千代田区岩本町3丁目9番17号 | 最寄駅 | 都営新宿線「岩本町」駅徒歩1分 東京メトロ日比谷線「秋葉原」駅徒歩2分 JR中央・総武線「浅草橋」駅徒歩10分 |
|---|---|---|---|
| 築年月 | 1985年07月 | その他交通 | JR山手線「秋葉原」駅徒歩4分 |
| 構造 | 鉄骨鉄筋コンクリート造(SRC造) 10階建 | 設備 | エレベーター , OAフロア |
| 駐車場 | 契約期間 | ||
| 備考 | - - | 更新日 | 2025年09月11日 |
| その他費用 | ・指定保証会社加入要 | ||
お問い合わせの際は、「建物No.13643」とお伝えください。
03-5468-6097
営業日:平日、第2、第4土曜 / 受付時間:10:00~19:00
「岩本町」駅 徒歩3分
「秋葉原」駅 徒歩3分
「秋葉原」駅 徒歩6分
「岩本町」駅 徒歩5分
03-5468-6097
〒150-0002 東京都渋谷区渋谷3-15-5 パールビル3階 東京都知事免許(4)第86290号 会社案内
| 号室 | 賃料 | 管理費 | 敷金/礼金 | 専有面積 | |
|---|---|---|---|---|---|
| 6階 | 相談 (税別) | 相談 (税別) | 相談/0ヶ月 | 272.46m² | |
| 9階 | -- (税別) | 0円 (税別) | 6ヶ月/0ヶ月 | 265.85m² |

岩本町は、落ち着いたオフィス街です。そのため、平日と休日の人口差が大きいです。また、秋葉原駅、神田駅が両方徒歩圏内にあり、オフィス立地として人気があります。
秋葉原、神田の雑多な感じが苦手な方にはこちらの岩本町駅の方が向いています。
岩本町にある大手企業としては、山崎製パン、イエローハットが有名です。
近隣のレンタルオフィス取材記事はこちら↓
→【レンタルオフィス・シェアオフィス×神田】東京駅も徒歩圏!神田駅のおすすめ物件!
→レンタルオフィス・シェアオフィス×秋葉原【取材記事】
岩本町駅賃料相場(坪単価):1.26万円
1985年竣工、ベージュ色の外壁の建物です。靖国通り沿いに面して立地、1階にはカフェが入居していますので目印になります。
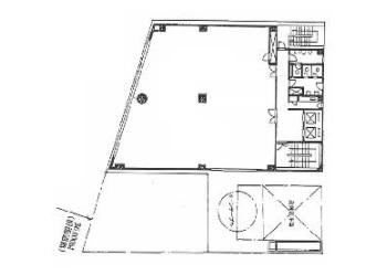
基準となるフロアは1フロア約80坪。募集時期やフロアにより、分割区画などご紹介も可能です。
EV2基、共用部に男女別のトイレと給湯室があり、貸室内は効率よくレイアウトすることができます。
OAフロアや個別空調、機械式駐車場など設備も充実しています。セキュリティは機械警備を導入済み。
秋葉原駅も徒歩2分でアクセス可能な好立地!周辺はオフィス街ですが、コンビニや飲食店も多くランチ環境も充実しています。