| 住所 | 東京都千代田区神田鍛冶町3丁目7番 | 最寄駅 | JR山手線「神田」駅徒歩2分 都営新宿線「小川町」駅徒歩5分 東京メトロ丸の内線「淡路町」駅徒歩7分 |
|---|---|---|---|
| 築年月 | 2019年01月 | その他交通 | |
| 構造 | 鉄骨構造(S造) 10階建 | 設備 | エレベーター |
| 駐車場 | 契約期間 | ||
| 備考 | - - | 更新日 | 2025年09月11日 |
| その他費用 | |||
お問い合わせの際は、「建物No.09884」とお伝えください。
03-5468-6097
営業日:平日、第2、第4土曜 / 受付時間:10:00~19:00
「神田」駅 徒歩5分
「秋葉原」駅 徒歩6分
「三越前」駅 徒歩5分
「新御茶ノ水」駅 徒歩2分
03-5468-6097
〒150-0002 東京都渋谷区渋谷3-15-5 パールビル3階 東京都知事免許(4)第86290号 会社案内

神田駅は山手線、京浜東北線、中央線のJRと地下鉄銀座線を利用することができます。
秋葉原の電気街の南側にほど近く、駅周辺は中小企業を中心にオフィスが多く集まるエリア。サラリーマンの街らしく、リーズナブルな居酒屋が点在します。一方で、昔ながらの商店街や戦火を免れた古い一軒家が残されており、レトロな雰囲気を求めて散策を楽しむ人も少なくありません。
そうした環境において、駅前に地上19階の賃貸オフィス「アーバンネット神田ビル」が誕生。神田の新しい未来を予感させます。
少し歩くと、有名な神田神保町古書店街があります。店舗数はおよそ180と、本の街としての規模は世界一。大学や専門学校も多く、学生街としての活気も十分です。
近隣のレンタルオフィス取材記事はこちら↓
→レンタルオフィス・シェアオフィス×神田【取材記事】
→レンタルオフィス・シェアオフィス×秋葉原【取材記事】
→レンタルオフィス・シェアオフィス×東京【取材記事】
神田駅賃料相場(坪単価):1.3万円
2019年1月竣工、白い外壁に低層部分が光沢のある茶色のパネル張りの外観の建物です。新耐震基準をクリアしています。
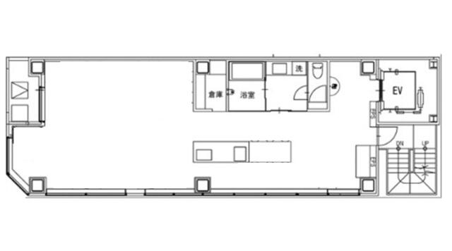
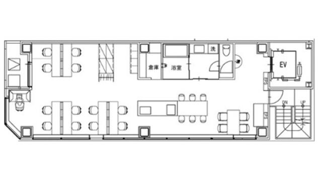
基準となるフロアは約27坪、1フロア1テナント利用、室内には専用のトイレがあり使い勝手も良好です。
最寄は神田駅、そのほか、小川町駅、淡路町駅、新日本橋駅、秋葉原駅が徒歩10分以内で利用でき、交通アクセスも良好です!