| 号室 | 賃料 | 管理費 | 敷金/礼金 | 専有面積 | |
|---|---|---|---|---|---|
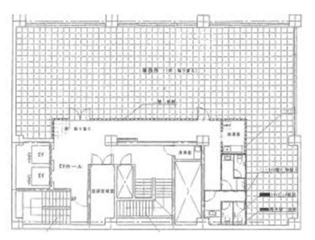
| 2階 | 697,800円 (税別) | 232,600円 (税別) | 10ヶ月/0ヶ月 | 192.23m² | |
| 3階 | 872,400円 (税別) | 290,800円 (税別) | 10ヶ月/0ヶ月 | 240.33m² |
| 住所 | 東京都中央区日本橋小伝馬町12番5号 | 最寄駅 | 東京メトロ日比谷線「小伝馬町」駅徒歩1分 都営新宿線「馬喰横山」駅徒歩7分 都営浅草線「人形町」駅徒歩9分 |
|---|---|---|---|
| 築年月 | 1973年06月 | その他交通 | |
| 構造 | 鉄骨鉄筋コンクリート造(SRC造) 9階建 | 設備 | エレベーター |
| 駐車場 | 契約期間 | ||
| 備考 | - - | 更新日 | 2025年09月11日 |
| その他費用 | |||
お問い合わせの際は、「建物No.06606」とお伝えください。
03-5468-6097
営業日:平日、第2、第4土曜 / 受付時間:10:00~19:00
「三越前」駅 徒歩5分
「岩本町」駅 徒歩3分
「秋葉原」駅 徒歩6分
「岩本町」駅 徒歩5分
03-5468-6097
〒150-0002 東京都渋谷区渋谷3-15-5 パールビル3階 東京都知事免許(4)第86290号 会社案内
| 号室 | 賃料 | 管理費 | 敷金/礼金 | 専有面積 | |
|---|---|---|---|---|---|
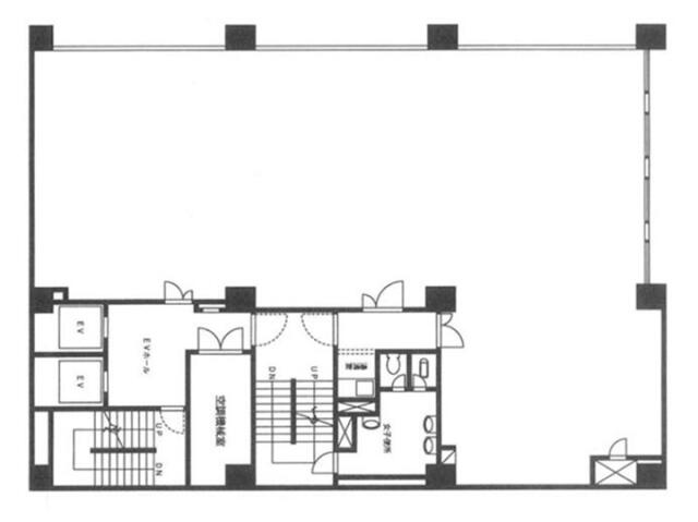
| 9階 | -- (税別) | 0円 (税別) | 8ヶ月/0ヶ月 | 70.81m² |

小伝馬町駅は東京メトロ日比谷線の駅です。秋葉原駅と人形町駅の間に位置しています。最寄りのバス停は、小伝馬町、岩本町、堀留町一です。
オフィス街ですが、衣類関係の問屋さんも多い町。近くには伝馬町牢屋敷跡、東京国税局日本橋税務署などがあり、オフィスと昔ながらのお店が融合されたエリア。治安がよく、ビジネスホテルやカプセルホテルも多く万が一終電を逃してしまっても安心です。昭和システムエンジニアリング、橋本総業、シーズメン、パシフィックシステムなどの上場企業が本社を構え、多くの企業が徒歩圏内。三菱東京UFJ銀行、三井住友銀行の支店や「MFPR日本橋本町ビル」のような大きなオフィスビルもあります。
近隣のレンタルオフィス取材記事はこちら↓
→レンタルオフィス・シェアオフィス×浅草橋・岩本町・馬喰横山 【取材記事】
小伝馬町駅賃料相場(坪単価):1.19万円
1973年竣工のオフィスビル、計画的なリノベーションが実施されているので、エントランスやトイレ改修など使う人に清潔で明るい印象を与えます。2016年11月に耐震補強工事も実施済み!
平日日中には管理人も常駐していますので、安心です。
周辺には飲食店や銀行、コンビニ等充実しています